bestseller
bestseller
nowoczesnydesign
realizacja w
3 miesiące
skandynawski dom
całoroczny
duży wybóropcji dodatkowych
duży zakrespersonalizacji
transport po
całej Polsce
instalacje
elek. i wodno-kana.
Gotowy całoroczny dom modułowy 120+
Model domu modułowego 120+ „Jaskółka” to wyjątkowa propozycja, która łączy w sobie atrakcyjny wygląd, przytulność oraz wysoką funkcjonalność. Projekt został stworzony z myślą o rodzinach liczących cztery lub pięć osób, zapewniając im wygodę na co dzień. Zwarta, prostokątna bryła budynku przykryta jest prostym, dwuspadowym dachem wykonanym z drewna. W bryłę domu wkomponowano przestronny garaż jednostanowiskowy, co podnosi komfort użytkowania.
Wnętrze zaplanowano w sposób praktyczny – na parterze znajduje się strefa dzienna z pokojem gościnnym, natomiast na poddaszu rozlokowano część nocną. Salon z jadalnią otwiera się na ogród i prowadzi na częściowo zadaszony taras, idealny do spożywania posiłków w ciepłe dni. Nad garażem i kotłownią przewidziano duży strych użytkowy, który można zaadaptować na dodatkowy pokój lub przestrzeń rekreacyjną, a w razie potrzeby podzielić na dwa mniejsze pomieszczenia. Odpowiednia wysokość ścian kolankowych (106 cm w części mieszkalnej i 163 cm na strychu) pozwala na wygodne zagospodarowanie poddasza i zachowanie harmonijnych proporcji budynku. Projekt stanowi udane połączenie tradycyjnej bryły, nowoczesnych materiałów – takich jak tynk mineralny czy eleganci dach – oraz współczesnej estetyki. Ponadczasowy charakter architektury sprawia, że dom doskonale wpisuje się w różnorodne otoczenie. Budynek jest nie tylko prosty w formie, ale także ekonomiczny w budowie i eksploatacji.
DOM Modułowy 120+ „Jaskółka”
131.78 m²
119.70 m²Potrzebuje więcej inf.
Widok elewacji
Widok wnętrza
SPECYFIKACJA
Trochę więcej o Twoim wymarzonym domu
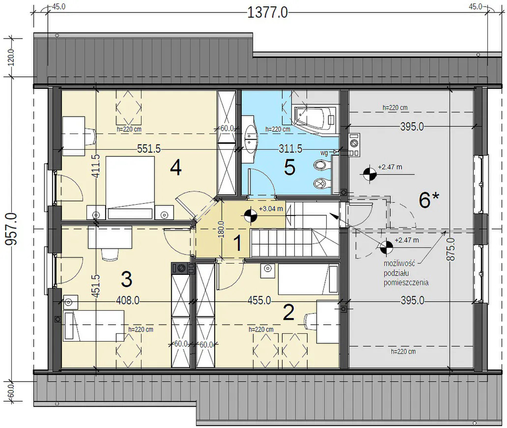
Wymiary: 9,57 m (Dł) x 13,77 m (Sz) x 8,75 m (W)
Powierzchnia: 131,78 m² zabudowy, 119,70 m² powierzchnia wewnętrzna
ŚCIANA ZEWNĘTRZNA:
Płyta g-k
Paroizolacja
KVH/ C24 170 mm wypełniona wełną mineralną grubości 170 MM
Wiatroizolacja
Płyta STEICO
Siatka zbrojąca, klej
ŚCIANA WEWNĘTRZNA:
płyta g-k
KVH/ C24 100 mm wypełniona wełną mineralną grubości 100 mm
płyta g-k
DACH:
Płyta kartonowo gipsowa 12mm (dotyczy stanu deweloperskiego)
Kontrłata 50 mm -60 mm z wypełnieniem z
wełną mineralną 50mm- 60 mm
Warstwa paroizolacyjna
Krokwie z drewna konstrukcyjnego C24 200 mm z izolacją termiczną pomiędzy krokwiami 200mm
Membrana dachowa
Łata i Kontrłata
Blacha stalowa na rąbek w kolorze antracytowym grubość 0,5mm
STROP:
W domach z antresolą / z poddaszem — PŁYTA OSB 22 mm
Belka drewniana konstrukcja C 24 240 mm z izolacją wełny mineralnej 120 mm
RZUTY DOMU
Najczęściej zadawane pytanie dotyczące domu modułowego "Jaskółka"
Nie znalazłeś odpowiedzi na swoje pytanie? Zadzwoń do nas!
Wliczone w cenę
Konstrukcja: modułowa z drewna konstrukcyjnego C24 / KVH
Okna: 3-szybowe PCV, antracyt
Dach: blacha na rąbek, antracyt
Schody: drewniane z barierką
Instalacje: Instalacja elektryczna, wodno-kanalizacyjna
Docieplenie wełna mineralna
Nie wliczone w cenę
Ciepła płyta fundamentowa w cenie 690 złotych netto za m2
Elewacja: tynk mineralny
Schody: drewniane z barierką
Wykończenie: wykończenie płytami g-k / w-g
Fasada: tynk mineralny
Taras
Opcje
Taras
Bali
Sauna
Płatności
10 % Wynagrodzenia, tytułem zadatku – płatne w terminie 3 dni od dnia zawarcia Umowy,
45 % Wynagrodzenia zaliczki na zakup materiałów wskazanych w Ofercie,
25 % Wynagrodzenia – płatne przed dokonaniem dostawy, najpóźniej przed rozładunkiem elementów na terenie budowy,
20 % Wynagrodzenia – płatne w dniu wykonania montażu ścian, dachu i okien w obiekcie.
Zobacz inne gotowe domy
Dobierz do swojego nowego domu:
Saunę
Balię











67.09
95.41
2
3
2














